Řetězová trojhoupačka RH6312KW - hnědá (v.p. 1,5 m)
Kód produktu: RH-6312KW-15
Řetězová trojhoupačka RH6312K - celokovová, výška pádu 1,5 m. Na výběr jsou tři barevné varianty konstrukce - hnědá, modrá a červená. Více informací
Další barevné varianty
Technické údaje
| Kód produktu: | RH-6312KW-15 |
|---|---|
| Doporučený věk: | 2-15 let |
| Výška volného pádu: | 1,5 m |
| Max. počet uživatelů: | 3 |
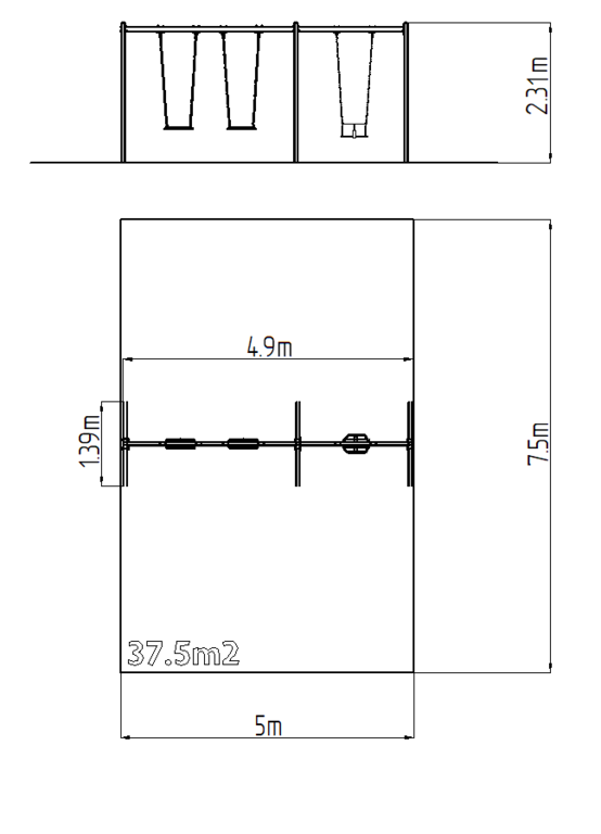
| Rozměry: | 4,9 x 1,39 x 2,31 m |
| Plocha nutná pro montáž: | 7,9 x 7,5 m |
| Povrch, tlumící pád: | dle normy EN 1177 37,5 m2 |
| Norma: | ČSN EN 1176-1 ed.2 +A1:2024 ČSN EN 1176-2 ed.2:2018 |
Nosná konstrukce trojhoupačky je vyrobena z konstrukční oceli, která je proti korozi chráněna povrchovou úpravou zinkováním, čímž se docílí velmi výrazného prodloužení životnosti herního prvku nebo duplexním nástřikem práškovou vypalovací barvou dle RAL. Tyto konstrukce jsou uloženy do betonového lože. Veškeré další kovové prvky jsou také upravovány zinkováním nebo duplexním nástřikem práškovou vypalovací barvou dle RAL.
Sedátko baby je vyrobeno z pryže a je vyztuženo hliníkovou vložkou. Sedátko Normal je hliníkové, obalené měkkou a pohodlnou pryží. Houpačka je zavěšena pomocí nerezových řetězů na kovovém nosníku. Veškerý spojovací materiál je pozinkovaný nebo nerezový.
Ke zboží Řetězová trojhoupačka RH6312KW - hnědá (v.p. 1,5 m) ještě nikdo nenapsal dotaz, nebo komentář. Neváhejte se zeptat.
Technický list [170 kB, PDF]
sk
de
en
hu
ro
lt





