Stezka dovednosti SD101K - celokovová
 
            
            
        
        Kód produktu: SD-105KS-10
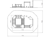
Ručkovadlo, řetězová lávka s trámky, 3x step, síť, 6x podesta, 3x lanové kruhy, lano, lanová lávka, řetězová lávka. Na výběr jsou tři barevné varianty konstrukce - stříbrná, hnědá a modrá. Více informací
| Kód produktu: | SD-105KS-10 | 
|---|---|
| Doporučený věk: | 2-10 let | 
| Výška volného pádu: | 1 m | 
| Max. počet uživatelů: | 15 | 
| Rozměry: | 6,5 x 4,1 x 2,26 m | 
| Plocha nutná pro montáž: | 9,5 x 7,1 m | 
| Povrch, tlumící pád: | dle normy EN 1177 - trávník | 
| Norma: | ČSN EN 1176-1 ed.2 +A1:2024 ČSN EN 1176-11:2015 | 
Nosná konstrukce stezky dovednosti je vyrobena z konstrukční oceli, která je proti korozi chráněna povrchovou úpravou zinkováním, čímž se docílí velmi výrazného prodloužení životnosti herního prvku nebo duplexním nástřikem práškovou vypalovací barvou dle RAL. Tyto konstrukce jsou uloženy do betonového lože. Veškeré další kovové prvky jsou také pravovány zinkováním nebo duplexním nástřikem práškovou vypalovací barvou dle RAL.
Lana a sítě jsou vyrobeny z materiálu HERKULES (16 mm lana z polypropylenu s vnitřním ocelovým jádrem) a jsou spojována plastovými spoji. Desky stepů jsou vyrobeny z vysoce kvalitního plastu HDPE (vysokotlaký, celoprobarvený polyetylen, který se vyznačuje vysokou barevnou stálostí, odolnosti proti UV záření a hlavně bezpečností, protože je nelámavý a nehrozí tak žádné nebezpečí zranění ostrými úlomky). Podesty jsou vyrobeny z HPL (vysokotlaký laminát, který se vyznačuje vysokou barevnou stálostí, odolností proti poškrábání a odolností proti vodě). Kmitající trámky jsou zavěšeny pomocí pozinkovaných řetězů na kovovém nosníku. Veškerý spojovací materiál je pozinkovaný nebo nerezový.
Ke zboží Stezka dovednosti SD105KS - stříbrná ještě nikdo nenapsal dotaz, nebo komentář. Neváhejte se zeptat.
 Technický list [170 kB, PDF]
 Technický list [170 kB, PDF] 
            
            
        
         
            
            
        
         
            
            
        
        