Řetězová houpačka se skluzavkou RH6152KB - modrá
Kód produktu: RH-6152KB-10
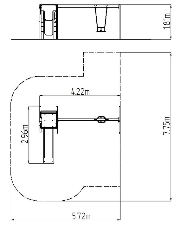
Řetězová houpačka se skluzavkou RH6152K - celokovová, s podestou, výška pádu 1 m, jako dopadová plocha postačí trávník. Na výběr jsou tři barevné varianty konstrukce - modrá, červená a hnědá a čtyři barevné varianty skluzavek - červená, žlutá, zelená a modrá. Více informací
Další barevné varianty
Technické údaje
| Kód produktu: | RH-6152KB-10 | 
|---|---|
| Hmotnost: | 244.25 kg | 
| Doporučený věk: | 2-15 let | 
| Výška volného pádu: | 1 m | 
| Max. počet uživatelů: | 5 | 
| Rozměry: | 4,22 x 2,96 x 1,81 m | 
| Plocha nutná pro montáž: | 7,22 x 7,75 m | 
| Povrch, tlumící pád: | dle normy EN 1177 - trávník | 
| Norma: | ČSN EN 1176-1 ed.2 +A1:2024 ČSN EN 1176-2 ed.2:2018 ČSN EN 1176-3 ed.2:2018 | 
Nosná konstrukce houpačky je vyrobena z konstrukční oceli, která je proti korozi chráněna povrchovou úpravou zinkováním, čímž se docílí velmi výrazného prodloužení životnosti herního prvku a vypalovanou barvou KOMAXIT dle odstínu RAL. Tyto konstrukce jsou uloženy do betonového lože. Veškeré další kovové prvky jsou také upravovány zinkováním a vypalovanou barvou KOMAXIT dle odstínu RAL.
Skluzavka je vyrobena ze sklolaminátu. Čelo skluzavky je vyrobeno z vysoce kvalitního plastu HDPE (vysokotlaký, celoprobarvený polyetylen, který se vyznačuje vysokou barevnou stálostí, odolnosti proti UV záření a hlavně bezpečností, protože je nelámavý a nehrozí tak žádné nebezpečí zranění dětí ostrými úlomky).
Houpačka je zavěšena pomocí nerezových řetězů na kovovém nosníku. Podesta je vyrobena z HPL (vysokotlaký laminát, který se vyznačuje vysokou barevnou stálostí, odolností proti poškrábání a odolností proti vodě). Sedátko baby je vyrobeno z pryže a je vyztuženo hliníkovou vložkou. Sedátko Normal je hliníkové, obalené měkkou a pohodlnou pryží. Veškerý spojovací materiál je pozinkovaný nebo nerezový.
Ke zboží Řetězová houpačka se skluzavkou RH6152KB - modrá ještě nikdo nenapsal dotaz, nebo komentář. Neváhejte se zeptat.
 Technický list [170 kB, PDF] Technický list [170 kB, PDF]
 sk
sk de
de en
en hu
hu ro
ro lt
lt 
            



